Logo
Производство и строительство домов по технологии CLT. 
Cтроим по всей РФ
 8 (800) 350 11 80
Сейчас работаем - Звоните!
  • Главная
  • Проекты и цены
    • Проекты
    • Цены
  • Преимущества
    • Преимущества CLT
    • Наши преимущества
  • О компании
    • Производство
    • О нас
    • RnD департамент
  • Продукция
    • CLT
    • LVL
    • GLT (клееный брус)
    • RIB (ребристые панели)
    • TIMBLOCK
  • Портфолио
  • Блог
    • Новости
  • Партнёрская программа
  • Наши партнеры
  • Реферальная программа
  • Контакты
Logo
8 (800) 550 10 03
Сейчас работаем - Звоните!

СПА-комплекс 
из CLT-панелей

Калужская область, д. Бобровники
  • Площадь: 220 м²
  • Конструктив: CLT-панели (стены, перекрытия, кровля)
  • Материал: Ель, заводская камерная сушка
  • Статус: Реализованный объект

Нажимая на кнопку, вы даете согласие на обработку персональных данных

Концепция и архитектура
СПА-комплекс разработан и построен компанией Сиэлти Рус как пример современного загородного оздоровительного пространства, выполненного полностью на основе mass timber-технологий. Архитектурное решение основано на натуральной пластике дерева и максимальном вовлечении природного окружения в интерьер за счёт панорамного остекления и открытой террасы у воды.

Фасады и внутренние поверхности оставлены в натуральной текстуре**, что обеспечивает естественный микроклимат и устойчивую эстетику без дополнительной отделки.

Планировочная структура

Функциональная схема комплекса включает:

  1. Входную группу и зону администратора
  2. Гостиную-зону отдыха с видом на водоём
  3. Открытую террасу вдоль фасада на сторону акватории
  4. СПА-блок:
  • хаммам
  • помывочная
  • комнаты отдыха
  • технические помещения
  • Фитнес- / йога-пространство с панорамным остеклением
  •  Раздельные раздевалки и душевые
Планировка обеспечивает изолированные сценарии пребывания и возможность работы комплекса круглый год.
Отправим полный каталог проектов сразу в мессенджер

Технология и конструктив

Стены и перекрытия выполнены из CLT-панелей толщиной 120–160 мм, произведённых на собственных линиях.

Сборка выполнена по системе сухого монтажа, что сократило сроки возведения коробки до нескольких недель. Инженерные системы адаптированы под зоны повышенной влажности с контролем микроклимата и вентиляции.

В интерьере применяется сочетание натурального дерева, стекла и минималистичной мебелировки, формируя спокойную и комфортную среду отдыха.

Преимущества применения CLT

Точная геометрия и архитектурная выразительность
Естественный микроклимат и комфортные акустические свойства
Высокая теплоэффективность без массивной теплоизоляции
Экологичность и подтверждённая долговечность конструкции
Комплекс демонстрирует потенциал CLT-технологий в коммерческих wellness-проектах, где соединяются эксплуатационная надёжность и эстетика натуральных материалов.
СПА-комплекс в Бобровниках — это реализованный пример современной деревянной архитектуры, где конструкция выступает частью интерьера, а природная среда становится полноценным участником архитектурного сценария.
Контакты
Адрес: г. Вологда, Западный переулок 2
 8 (800) 350 11 80
Адрес: г. Рыбинск, Ярославский тракт 74-а
8 910 828 87 82
Frolov1111@yandex.ru

Адрес производства: г. Вологда, п. Рубцово 104

Email: 
info@clt-rus.ru
dir@clt-rus.ru
valentina.clt@yandex.ru

Часы работы:
пн - пт 9.00 - 18.00
сб, вск 9.00 - 16.00

Партнерская группа Segezha Group
ООО «Сиэлти рус»
ИНН 9703082035
ООО «ВДСК»
ИНН 3525469503
Logo
Logo
Logo
Logo
Logo
  • Партнерство
  • Каталог
  • Контакты
  • Фото домов
  • Преимущества CLT
  • Комплектации

© 2019. Все права защищены.

Политика конфиденциальности
Получить персональный расчет проекта
Укажите номер телефона 
и мы свяжемся с вами

Нажимая на кнопку, вы даете согласие на обработку персональных данных

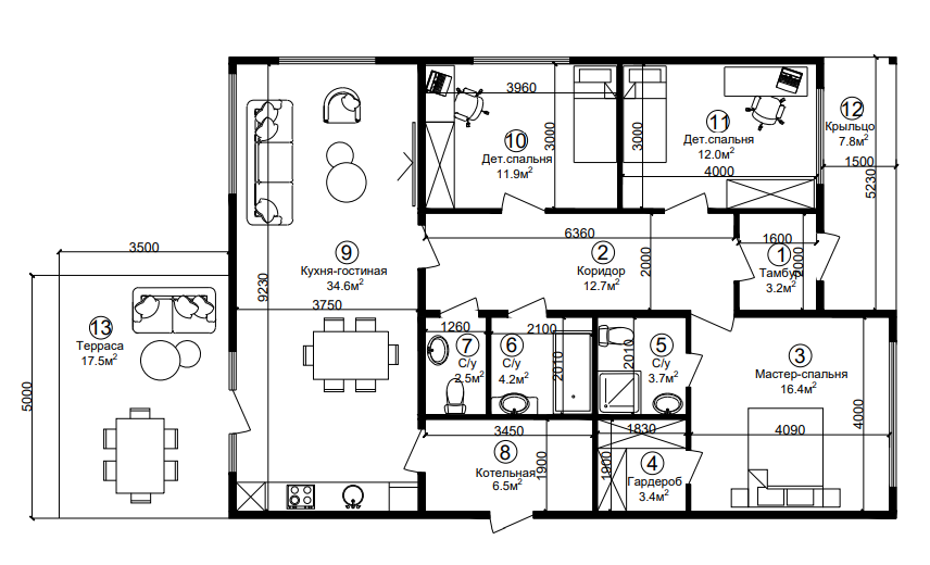
Проект Дания

7 900 000 ₽

  • Мастер-спальня с отдельным санузлом и гардеробной
  • 2 детские спальни
  • Кухня-гостиная
  • Раздельный санузел
  • Котельная
  • Терраса
  • Крыльцо в подарок

  • Площадь: 135 м²
  • Этажей: 1
  • Крыша: скатная

Получить полный каталог проектов

Выберите удобный способ
Укажите номер телефона
Укажите электронную почту

Нажимая на кнопку, вы даете согласие на обработку персональных данных

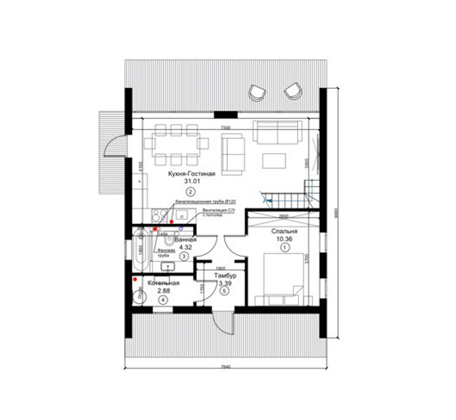
Проект Нью Касл

5 100 000 ₽

  • 2 спальные комнаты
  • Кухня-гостиная
  • Второй свет
  • Санузел
  • Котельная
  • Терраса
  • Крыльцо в подарок

  • Площадь: 95 м²
  • Этажей: 2
  • Крыша: скатная

Получить полный каталог проектов

Выберите удобный способ
Укажите номер телефона
Укажите электронную почту

Нажимая на кнопку, вы даете согласие на обработку персональных данных

Проект Кейптаун

8 000 000 ₽

  • 3 спальные комнаты
  • Кухня-гостиная
  • 2 санузла
  • Котельная
  • Банный комплекс
  • Терраса
  • Крыльцо в подарок

  • Площадь: 134 м²
  • Этажей: 1
  • Крыша: скатная

Получить полный каталог проектов

Выберите удобный способ
Укажите номер телефона
Укажите электронную почту

Нажимая на кнопку, вы даете согласие на обработку персональных данных

Спасибо, что обратились в CLT RUS

Скоро мы с вами свяжемся. 

Будьте на связи! 


А пока вы можете подписаться на наши соц сети и получить дополнительную скидку на строительство дома и узнать много интересного

В какое время перезвонить?

Например с 9 до 21:00

Нажимая на кнопку, вы даете согласие на обработку персональных данных

Мы не передаем Вашу персональную информацию третьим лицам

Производство и строительство домов по технологии CLT. 
Cтроим по всей РФ
  • Главная
  • Проекты и цены
    • Проекты
    • Цены
  • Преимущества
    • Преимущества CLT
    • Наши преимущества
  • О компании
    • Производство
    • О нас
    • RnD департамент
  • Продукция
    • CLT
    • LVL
    • GLT (клееный брус)
    • RIB (ребристые панели)
  • Портфолио
  • Блог
    • Новости
  • Партнёрская программа
  • Наши партнеры
  • Реферальная программа
  • Контакты
Посмотреть каталог проектов прямо сейчас

Нажимая на кнопку, вы даете согласие на обработку персональных данных

Скачайте каталог проектов прямо сейчас

Нажимая на кнопку, вы даете согласие на обработку персональных данных

Мы не передаем Вашу персональную информацию третьим лицам

  • Shop
  • New
  • About
  • Contact
Спасибо, что обратились в CLT RUS

Скоро мы с вами свяжемся. 

Будьте на связи! 


А пока вы можете подписаться на наши соц сети и получить дополнительную скидку на строительство дома и узнать много интересного

В какое время перезвонить?

Например с 9 до 21:00

Нажимая на кнопку, вы даете согласие на обработку персональных данных

Мы не передаем Вашу персональную информацию третьим лицам

Спасибо, что обратились в CLT RUS

Скоро мы с вами свяжемся. 

Будьте на связи! 

В какое время перезвонить?

Например с 9 до 21:00

Нажимая на кнопку, вы даете согласие на обработку персональных данных